Segregación en LA04
jun. de 2018
---
Arquitecto: Iñigo Arias
Diseño interior: Roberto Arias
Localización: Getxo (Bizkaia)
Promotor: Privado
Constructora: Construcciones Bizkargi XXI, S.L.
Superficie: 170,98m²
---
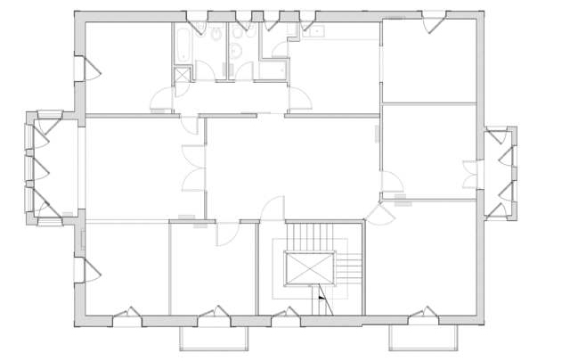
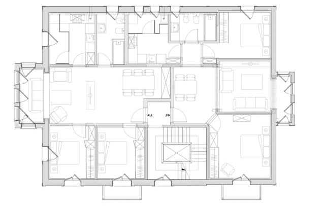
Se recibe por parte de los clientes el encargo de la redacción de un proyecto de segregación de vivienda. Para ello se establecen una serie de criterios de necesario cumplimiento, tales como la necesidad de que ambas viviendas resultantes dispongan de la misma superficie construida y programática.

La ejecución de la presente intervención se realizó mediante la demolición total de la vivienda existente, así como de los elementos relativos a ellas.

Debido a los condicionantes propios del edificio en el cual se ejecutó el proyecto, fue necesaria la inclusión de una serie de refuerzos estructurales que permitieran la demolición parcial de su estructura principal.
iñigo arias arquitecto, arquitecto getxo, arquitecto bilbao, iñigo arias, architect getxo, architect bilbao, iaadstudio, fachada ventilada, SATE, eco, passive