Camping Quintana
jul. de 2016
---
Arquitecto: Iñigo Arias
Arq. Técnico: Felipe Arias
Localización: c/ Grupo San Roque nº 19, Quintana Martín Galíndez (Burgos)
Promotor: Camping Quintana, S.L.
Superficie: 33.823,38m²
Estado: No construido
---
La iniciativa de la realización del presente proyecto nace como consecuencia de las riadas que asolaron el camping existente en la localidad vecina de Frías. La ausencia de una instalación cercana que permitiera cubrir esta necesidad y diera respuesta a los usuarios fieles a la zona sirve de catalizador y por tanto como elemento detonante-promotor del desarrollo del presente proyecto de camping.

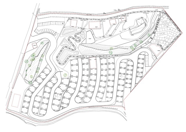
En el diseño del camping se han valorado las necesidades del promotor, la situación física de la parcela y la búsqueda de unas prestaciones funcionales que resulten atractivas y cómodas para el usuario al tiempo que se busca una vista agradable del valle desde cada una de las parcelas.

La observación de la parcela de actuación invita a realizar una zonificación bien definida, evitando así la existencia de limites difusos que originen situaciones incomodas entre los distintos usuarios del camping. Por ello se propone ejecutar un diseño que divida el camping en dos.

Una zona alta en ladera y orientada al sur para realizar la disposición de los módulos, todos con la misma orientación.

Otra zona baja, relativamente llana aunque con una pendiente amable que se va elevando hasta unirse con la parcela alta en su parte norte. En esta zona se ubicarán las zonas de servicios y de esparcimiento del camping.

La unión entre ambas plataformas se realiza en la zona norte mediante una ladera en la que se ha situado la zona de acampada libre.
iñigo arias arquitecto, arquitecto getxo, arquitecto bilbao, iñigo arias, architect getxo, architect bilbao, iaadstudio, fachada ventilada, SATE, eco, passive